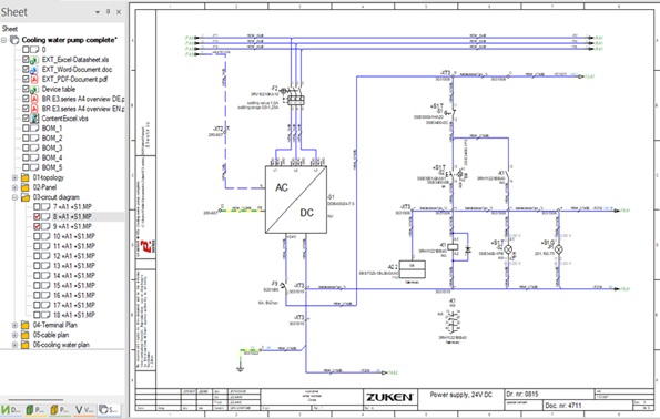
E3.schematic is a complete and open CAE solution for the creation of a circuit diagram for electrical design. It manages all data from the circuit diagram to the terminal plan and all affiliated documents such as BOM, Wiring list and assembly instructions. It is well capable of handling complex electrical circuit diagrams.




01
02
03
03

Authorized Partner of Zuken • Transforming electrical design workflows
All Right Reserved © 2025. Powered by DeepQ Systems – AI-Driven Business Automation